Reforma Consultorio Odontològico - Edificio Altamira   Ubicación/Location Santa Fe, Argentina.   Año/Year 2020   Tipo/Type Encargo-Anteproyecto, Proyecto y Dirección/Schematic design, Design development and Construction Supervision.   Autores/Authors 2(A) María Eva Contesti, Guillermina Iglesia  + Claudio Solari.

Sala de máquinas Parque Industrial San Lorenzo S.A.   Ubicación/Location San Lorenzo, Santa Fe, Argentina   Año/Year 2015   Tipo/Type Encargo-Anteproyecto y Proyecto/Schematic design and Design Development.   Autores/Authors 2(A) María Eva Contesti, Guillermina Iglesia. Colaboradores/Collaborators María José Manzi, Virginia Florez, Alejandro Perriard.

La Sala de máquinas del Parque Industrial San Lorenzo es un contenedor para alojar espacios de trabajo, grupo electrógeno, cisterna de agua, tanque hidroneumático y equipo de Osmosis Inversa.

 

La Sala de máquinas es un volumen de hormigón armado atravesado por un plano de corte diagonal que arma el ingreso.

 

En construcción.

 

IMÁGENES

Salón de exposiciones y ventas Parque Industrial San Lorenzo.   Ubicación/Location San Lorenzo, Santa Fe, Argentina.   Año/Year 2015   Tipo/Type Encargo-Anteproyecto/Schematic design.   Autores/Authors 2(A) María Eva Contesti, Guillermina Iglesia.   Colaboradores/Collaborators Lautaro Del Federico, Alejandro Perriard.

A la vera de la ruta provincial RP10, a escasos metros de la intersección con la AU NAC 9, se encuentra el ingreso al predio que albergará el Parque Industrial San Lorenzo. El encargo es un espacio de exposición, ventas y atención a potenciales inversores. 

 

Las dos estrategias proyectuales pensadas paralelamente se oponen: mirar o ser mirado. 

 

LOGO: una sombra cobijo del sol bajo la cual la topografia se alza para mejorar el punto de vista. Los límites del lote se alcanzan con la mirada.

 

CARTEL: desde el movimiento veloz del automovil que viaja, el espacio-cartel envía el mensaje leído a distancia. Su esbeltez se exagera contra la horizontalidad del entorno.

 

Mientras el edificio LOGO se recorta y descompone para crear espacio, el CARTEL se une con el contenedor para ser edificio. 

Reforma-Ampliacion para María Chuzena.   Ubicación/Location Santa Fe, Argentina.   Año/Year 2015   Tipo/Type Encargo-Anteproyecto, Proyecto y Dirección/Schematic design, Design development and Construction Supervision.   Autores/Authors 2(A) María Eva Contesti, Guillermina Iglesia.   Colaboradores/Collaborators María José Manzi, Virginia Florez, Alejandro Perriard.

El quincho y la pieza.

ENLACE PARA MÁS FOTOS

Trabajando sobre el volumen pre-existente se busca cambiar la relación de la casa con el exterior. Respondiendo a objetivos funcionales se realiza una simple operación: adición.

Los espacios intermedios y los equipamientos complementarios alojan e intensifican las actividades al aire libre a la vez que permiten establecer un diálogo más fluido ente el interior y el exterior.

La nueva habitación y la galería extienden el tiempo de uso en el conjunto.

fotos

Casa Estudio Contesti/Monella. Ubicación/Location Rosario, Santa Fe, Argentina.   Año/Year 2014-2015   Tipo/Type Encargo-Anteproyecto y Proyecto/Schematic design and Design Development.   Autores/Authors 2(A) María Eva Contesti, Guillermina Iglesia.   Colaboradores/Collaborators Lautaro Del Federico.

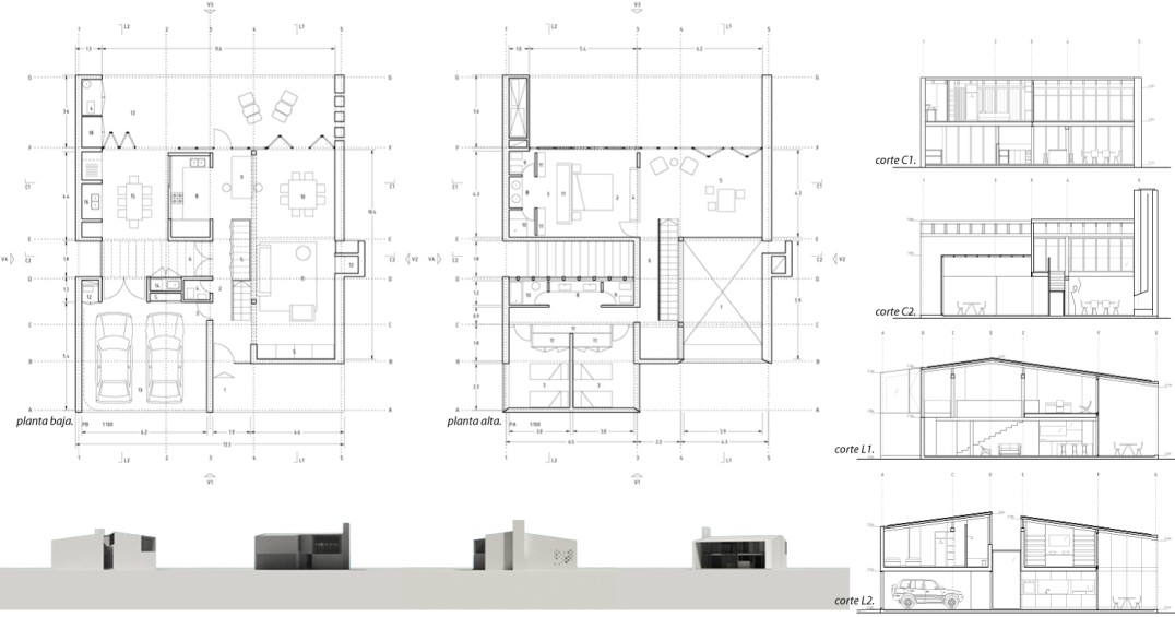
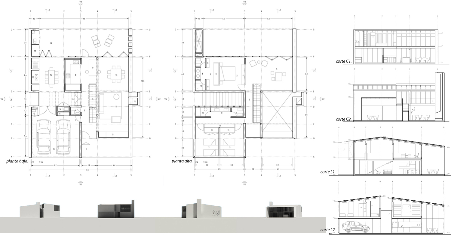
Vivienda y Quincho Etapa I / House and Quincho Phase I  Ubicación/Location Roldan, Santa Fe, Argentina. Año/Year 2020   Tipo/Type Vivienda permanente/Permanent Dwelling. Autores/Authors 2(A) María Eva Contesti, Guillermina Iglesia  + Claudio Solari Colaboradores/Collaborators Ramiro Serra, Eugenia Citterio y Rodrigo Herrera Muñiz.

El proyecto completo es una vivienda de 196 m2 para residencia permanente y consta de cuatro unidades espaciales diferenciadas de acuerdo a su uso. Con el propósito de facilitar la construcción en etapas, el diseño propone una única unidad espacial que se repetirá y rotará de acuerdo a los requerimientos programáticos. Las dos primeras unidades construidas son el garage, que servirá además de quincho de invierno, y la galería o quincho abierto.

Ajeno a este sistema de repetición y rotación es el núcleo que integra la parrilla, mesada, y toilette, el cual por medio de yuxtaposiciones volumétricas se ubica sugiriendo direcciones de circulación y estancia. Asimismo, las piedras y lajas que revisten los volúmenes diferencian materialmente al contenedor y contenido, evidenciando el juego de llenos y vacíos.

 

The complete project is a 196 sqm house for permanent residence and consists of four different spatial units according to their use. In order to facilitate construction in stages, the design proposes a single spatial unit that will be repeated and rotated according to programmatic requirements. The first two units built are the garage, which will also serve as a winter barbecue, and the gallery or open barbecue.

 Alien to this system of repetition and rotation is the nucleus that integrates the grill, countertop, and toilet, which by means of volumetric juxtapositions is located suggesting directions of circulation and stay. Likewise, the stones and slabs that cover the volumes materially differentiate the container and content, evidencing the interplay of fills and voids.

La Casa y Quincho Talacasto es una vivienda suburbana. Como tal, se dispone suelta en el lote y se organiza de forma longitudinal abriéndose principalmente hacia el norte para recibir el sol. La posición de los volúmenes divide el terreno consiguiendo dos jardines de calidades y usos diferentes.

La casa se piensa como un recorrido lineal que introduce al sujeto desde lo más público a lo más privado en una secuencia de espacios idénticos, aunque con sutiles variaciones de acuerdo a la relación con la luz solar. Los rayos solares penetran de manera más o menos directa según el grado de privacidad del recinto.

 

La Casa y Quincho Talacasto is a suburban dwelling. As such, it is located loosely in the lot and arranged longitudinally, opening mainly to the north to receive the sun. The position of the volumes divides the lot, achieving two gardens of different qualities and uses.

 The house is thought of as a linear path that introduces the subject from the most public to the most private in a sequence of identical spaces, although with subtle variations according to the relationship with sunlight. The sun's rays penetrate more or less directly depending on the degree of privacy of the enclosure.

Prototipo Pro.Cre.Ar 2014   Ubicación/Location Barrio Abierto Las Tardes, Roldán, Santa Fe, Argentina.   Año/Year 2013   Tipo/Type Encargo Anteproyecto para catálogo /Schematic Design for catalog and press release.    Autores/Authors 2(A) María Eva Contesti, Guillermina Iglesia.   Colaboradores/Collaborators Lautaro del Federico, Milva Sopegno.

Una vivienda prototipo diseñada por encargo de un consorcio de un barrio abierto en las afueras de la ciudad de Rosario, que formará parte de una publicación dirigida a propietarios potenciales. Cumpliendo los requerimientos de superficie y presupuesto, la propuesta indaga en cuestiones de privacidad y apertura de los espacios de encuentro, teniendo en cuenta la cercanía de las viviendas linderas y la relación del interior con el exterior en un lote de estas proporciones. Al tratarse de un prototipo, la investigación aborda cuestiones generales tanto de situación como de tipo.

 

Located in a typical lot of a new urbanization in Roldán, the proposed prototype lays on the front limit of the lot generating the facade. The volume is positioned to find the best orientation, creating two different functional spaces, one private or dedicated to services, and the other social or hierarchical which opens towards the garden. The kitchen, dining room and living room are articulated under one roof, and through the openings on both sides of the house it configures a continuous interior-exterior space. 

El acabado de ladrillo tanto en los muros como en el techo enfatizan la idea de volumen monolítico desde el exterior, mientras que en el interior los acabados blancos de muros y cielorrasos potencian la precepción de la espacialidad interior. Las ventanas están dispuestas enmarcando vistas precisas y registrando los cambios de luz a lo largo del día.

 

The brick is both structure and finish, which emphasizes the idea of monolithic volume from the exterior. The white finish in walls and ceilings in the inside reinforces the perception of the interior space. The windows are placed to frame the views and to sense the changing quality of light along the day.

Casa LMCL. Ubicación/Location Funes, Santa Fe, Argentina.   Año/Year 2014   Tipo/Type Encargo Anteproyecto/Schematic Design.   Autores/Authors 2(A) María Eva Contesti, Guillermina Iglesia.   Colaboradores/Collaborators Lautaro del Federico.

La planta de la casa se estructura superponiendo dos esquemas, uno programático de 9 cuadrados y otro espacial de 4. Los espacios sirvientes y servidos se articulan según ejes estructurales, definiendo además retiros, espacios abiertos y salientes. La estructura de soporte de la cubierta reconoce y reafirma los ejes estructuradores del espacio.

 

4|9 overlapped

The house floor plan is structured overlapping two diagrams, one programmatic of 9 squares and another spatial of 4. Areas accessed and areas of access and services are articulated according structural axes, defining setbacks, open spaces and projecting elements. The supporting structure of the roof recognizes and reasserts the axes organizing the space.

La casa en dos niveles se aplasta y se fuga en la horizontalidad del paisaje. Los recortes de cielo y de suelo definen la relación de la casa con su entorno. La casa se estructura a partir de tres bloques de circulación y servicio. La circulación sobre el eje central de la planta se proyecta desde el ingreso hacia el fondo del lote y al mismo tiempo vincula y organiza los diferentes programas.

 

The two level house lowers its height and it vanishes towards the horizontality of the landscape. The cuts of sky and ground define the relation between the house and its surrounding. The house is configured after three blocks of service and circulation. The circulation on the main central axis projects from the entrance to the back of the lot, while links and organizes different programmatic areas.

Concesionaria de motos Honda.   Ubicación/Location Capitán Bermudez, Santa Fe, Argentina.   Año/Year 2010   Tipo/Type Encargo-Anteproyecto/Schematic design.   Autores/Authors 2(A) María Eva Contesti, Guillermina Iglesia.

Billboard shed

 

On the side of a state highway, a corner lot is the site of a motorcycle store.
The requirements of the commission are simple. One big open space, an administrative area that includes meeting room, sell offices, accountant and service, and a big glass window where to exhibit the motorcycles.

As the budget is restricted, it is decided to design a disproportionate metal structure covering the entire corner. Higher than the volume behind, the glass window multiplies the exhibition area.

The shed is also metallic structure. Entering from the back, its space opens up towards the window.

Oficinas Centrales Bertolotti  Ubicación/Location San Lorenzo, Santa Fe, Argentina. Año/Year 2018   Tipo/Type Encargo-Anteproyecto y Proyecto/Schematic design and Design Development.   Autores/Authors 2(A) María Eva Contesti, Guillermina Iglesia. Colaboradores/Collaborators Virginia Florez, Rodrigo Herrera Muñiz

 Este encargo forma parte de nuestro trabajo como Gea Desarrollos, desde donde llevamos a cabo el Parque Industrial San Lorenzo ubicado en la intersección de la autopista Rosario-Santa Fe y la RP10 en la Provincia de Santa Fe. El edificio se emplaza en un lote de cara a la autopista, haciéndose visible al paso de los vehículos que transitan a diario.

Esta obra es el resultado del trabajo en equipo con el cliente quien supo valorar nuestra propuesta que desafía la tipología tradicional del galpón. Nuestra búsqueda como estudio se basa en el cuestionamiento de las tipologías y los programas tradicionales poniendo en foco la cualificación espacial de los ambientes.  En este caso en particular, el desafío fue el de articular tres programas diferentes que debían funcionar independientemente: galpón o espacio de guardado y reparación de vehículos y maquinarias, estacionamiento cubierto para autos particulares y un sector de oficinas con sala de reunión, recepción y equipamiento.

Una estrategia recurrente en nuestras obras es también la de “el contenedor y el contenido”, es decir, la incorporación de un objeto de programa específico que articula y define los distintos espacios dentro de un contenedor que lo envuelve.

 

This commission is part of our work as Gea Desarrollos, from where we carry out the San Lorenzo Industrial Park located at the intersection of the Rosario-Santa Fe highway and the RP10 in the Province of Santa Fe. The building is located on a lot that faces the highway, becoming visible to the passage of vehicles that transit daily.

This work is the result of teamwork with the client who knew how to value our proposal that challenges the traditional typology of the shed. Our search as a study is based on questioning the typologies and traditional programs, focusing on the spatial qualification of the environments. In this particular case, the challenge was to articulate three different programs that had to function independently: shed or storage space and repair of vehicles and machinery, covered parking for private cars and an office area with meeting room, reception and equipment.

A recurring strategy in our works is also that of “the container and the content”, that is, the incorporation of a specific program object that articulates and defines the different spaces within a container that surrounds it.

 

 

Ubicado en un lote frentista a la autopista Rosario Santa Fe, el edificio se recuesta sobre un lateral para dejar paso a la circulación permanente de vehículos. Así mismo, el sector de oficinas se eleva para dejar lugar al estacionamiento y de esta manera, privilegiar las vistas hacia el horizonte. Este horizonte no se revela francamente a través de las aperturas, sino que por medio de la elección material se presenta distorsionado y difuso hacia el paisaje industrial.

 

Located on a lot in front of the Rosario Santa Fe highway, the building leans on one side to make way for the permanent circulation of vehicles. Likewise, the office sector rises to make room for parking and in this way, privilege views towards the horizon. This horizon is not frankly revealed through the openings, but rather, through the material choice, it appears distorted and diffused towards the industrial landscape.

 

http://www.bertolottivial.com.ar/

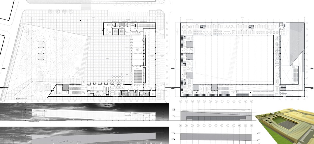
Edificios de Ingreso Parque Industrial San Lorenzo.   Ubicación/Location San Lorenzo, Santa Fe, Argentina.   Año/Year 2014   Tipo/Type Proyecto/Desing Development.   Autores/Authors 2(A) María Eva Contesti, Guillermina Iglesia.   Colaboradores/Collaborators Lautaro del Federico.

El ingreso al Parque Industrial San Lorenzo se encuentra flanqueado por dos edificios de mismo carácter que albergarán equipamientos diferentes. Sus volúmenes actúan como puertas a la vez que las cubiertas se convierten en quinta fachada debido a la depresión topográfica del punto de acceso.

Los edificios se generan a partir de los dos pórticos de ingreso vehicular y peatonal. Los ejes transversales definen las superficies a ocupar a ambos lados de la calle. Cada pórtico afecta la altura del volumen enfrentado. Los panos de cubierta se constituyen a partir de la unión de las aristas proyectadas. Los volúmenes adicionados completan el conjunto posicionándose paralelos a la calle flanqueando y profundizando el ingreso.

 

The Access to the San Lorenzo Industrial Park is flanked by two buildings of same character hosting different programs. The building volumes act like gates while the roof canopies become the fifth façade given the topographic depression from the access point.

The buildings are generated by the position of two gates, one vehicular and one pedestrian. The transversal axes define the occupancy surfaces at both sides of the access road. Each gate affects the height of the opposing volume. The roof planes are formed by the union of the projected edges. The added volumes complete the composition by positioning parallel to the access road deepening the entrance experience.

 

Las superficies transparentes y translúcidas de las fachadas interiores alternan entre siluetas definidas e indefinidas desdibujando el flujo continuo de vehículos y peatones.

Espacialmente, los dos edificios son entendidos como grandes cubiertas debajo de las cuales se alojarán programas diversos con posibilidades de crecimiento y re ordenamiento. El Edificio Administrativo, que se construirá en la primera etapa, consta con una superficie total de 1894 m2, incluyendo 694 m2 de superficie de pórtico semicubierto para el ingreso y egreso de vehículos y su adecuado control. El Edificio Comedor, proyectado para la segunda etapa, aloja además un espacio destinado a organismos públicos con acceso directo desde el exterior del PISL. El comedor cuenta con capacidad para 500 personas, cocina, depósito y sector independiente de ingreso de mercaderías y disposición de residuos, y sanitarios y vestuarios para el personal del PISL.

 

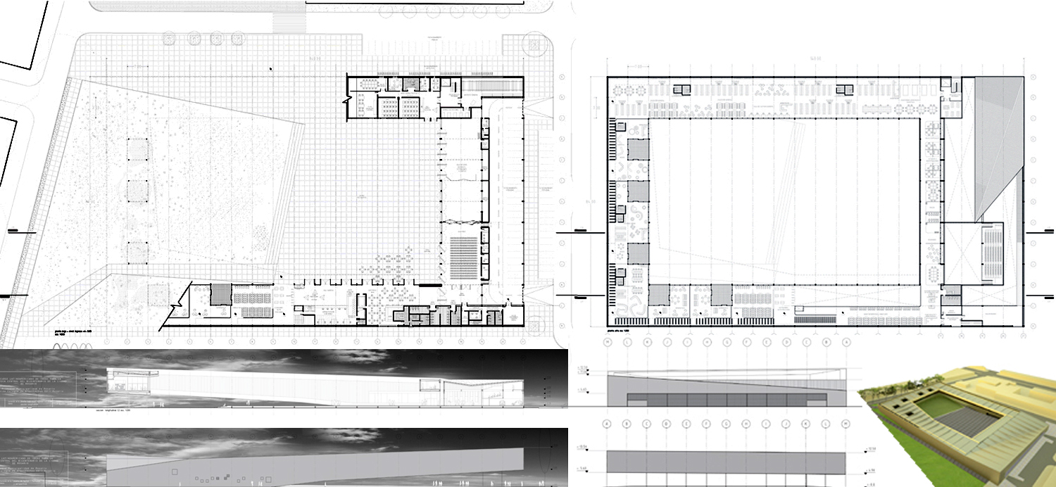
Edificio Uno, Parque Industrial San Lorenzo S.A.   Ubicación/Location San Lorenzo, Santa Fe, Argentina. Año/Year 2015   Tipo/Type Encargo-Anteproyecto y Proyecto/Schematic design and Design Development.   Autores/Authors 2(A) María Eva Contesti, Guillermina Iglesia.   Colaboradores/Collaborators María José Manzi, Virginia Florez, Lautaro Del Federico, Alejandro Perriard.

Contexto

El ingreso al Parque Industrial San Lorenzo se encuentra flanqueado por dos edificios de mismo carácter que albergarán equipamientos diferentes. Sus volúmenes actúan como puertas a la vez que las cubiertas se convierten en quinta fachada debido a la depresión topográfica del punto de acceso.

 

Investigacion

Los edificios se generan a partir de los dos pórticos de ingreso vehicular y peatonal. Los ejes transversales definen las superficies a ocupar a ambos lados de la calle. Cada pórtico afecta la altura del volumen enfrentado. Los paños de cubierta se constituyen a partir de la unión de las aristas proyectadas. Los volúmenes adicionados completan el conjunto posicionándose paralelos a la calle flanqueando y profundizando el ingreso.

 

Materia

Las superficies transparentes y translúcidas de las fachadas interiores alternan entre siluetas definidas e indefinidas desdibujando el flujo continuo de vehículos y peatones.

 

Sistema

El edificio administrativo se construirá en una primera etapa. Su cubierta a dos aguas demuestra, por medio de su forma, dos principales paquetes programáticos de funcionamiento independiente: ingreso, administración y control; y salón de usos múltiples.

 

 

 

Vìnculos

Espacialmente, los dos edificios son entendidos como grandes cubiertas debajo de las cuales se alojarán programas diversos con posibilidades de crecimiento y re ordenamiento. El Edificio Administrativo, que se construirá en la primera etapa, consta con una superficie total de 1894 m2, incluyendo 694 m2 de superficie de pórtico semicubierto para el ingreso y egreso de vehículos y su adecuado control. El Edificio Comedor, proyectado para la segunda etapa, aloja además un espacio destinado a organismos públicos con acceso directo desde el exterior del PISL. El comedor cuenta con capacidad para 500 personas, cocina, depósito y sector independiente de ingreso de mercaderías y disposición de residuos, y sanitarios y vestuarios para el personal del PISL.

Ubicación/Location Rosario, Provincia de Santa Fe, Argentina.   Type Residential building.   Program Private residences.   Type plan 1 bedroom, 2 bedrooms and 2 bedrooms plus apts.   TotalArea 1785 m2   Work Commissioned Design Development.   Status Delivered.   Year 2016   Client Confidential.   Team 2(A) María Eva Contesti, Guillermina Iglesia.   Collaborators María José Manzi, Virginia Florez, Alejandro Perriard.

Viviendas en Horizontal.   Ubicación/Location San Lorenzo, Santa Fe, Argentina.   Año/Year 2011-2013   Tipo/Type Anteproyecto/Schematic Design.   Autores/Authors 2(A) María Eva Contesti, Guillermina Iglesia.   Colaboradores/Collaborators Milva Sopegno, María José Manzi, Lautaro Del Federico.

Indagación sobre la relación espacio público, semi-público y privado

Los patios estratégicamente ubicados permiten el acople de las unidades sin compartir las paredes medianeras. Los volúmenes disminuyen su altura hacia el espacio común para logar mayor apertura. Las tiras de viviendas adosadas se articulan logrando singularidad. La sombra proyectada sobre cada unidad otorga relieve al conjunto.

 

Las unidades están planteadas con una pisada mínima de superficie exclusiva, por lo que se desarrollan en dos niveles. Cuentan con 100 m2 cubiertos. La ubicación de los patios propicia una sucesión entre adentro y afuera. Mediante la articulación de estos espacios exteriores se garantiza un mayor nivel de privacidad entre vecinos.

 

This small houses are conceived individually and collectively at the same time.
As to produce a medium density housing complex the efficient use of the lot is the clue. The outdoor areas included in the constrained lot form the final shape of the plan, and through repetition the built areas stay detached.  The resultant private patios give complete privacy, not only visual but also acoustic.

The houses are targeted at young families. The social spaces on the ground floor are articulated by the kitchen understood as the core of the house. Three different patios allow distinctive uses as parking space, garden, and service. Living room and dining room are use indistinctly. On the first level, two bedrooms and a bathroom complete the plan.

ESPACIALIDAD

Teniendo en cuenta que el edificio se propone como un lugar de encuentro para toda la sociedad, la planta baja es pensada no solo como el ingreso a la sede de FAENI sino también como un espacio jerarquizado en triple altura que integra el espacio público al interior por medio de transparencias y vinculaciones físicas y visuales.

SECTORES DE USO PÚBLICOPRIVADO

El hall de ingreso se propone como un atrio de transición de público a privado que alberga el escritorio de control e información, la circulación vertical, y el bar de funcionamiento independiente.

El bar cuenta con un salón con capacidad para treinta personas sentadas.  Se conecta con el edificio internamente, cuenta con un ingreso independiente y un sector de carga y descarga y disposición de residuos en el nivel del estacionamiento.

Desde el hall de ingreso y por medio de una escalera semi pública se accede al área de exposiciones conectado con el nivel donde se encuentra el SUM (+4.40), un sector de información y una sala para capacitación y reuniones.

El SUM tiene capacidad para cien personas y cuenta con una expansión al aire libre, kitchenette y depósitos para mobiliario y equipos. Este espacio prevé el desarrollo de múltiples eventos tanto institucionales como abiertos a la sociedad.

En el nivel principal del edificio (+7.55) y coronando el atrio en triple altura, se encuentran las oficinas administrativas y directivas de FAENI y CESGAR. A dicho nivel se accede por medio del núcleo circulatorio que cuenta con control de ingreso.

SECTORES DE USO PRIVADO

Espacialmente conectadas con las áreas semi públicas, el nivel donde se encuentran las oficinas administrativas y de las autoridades de ambas instituciones, es jerarquizado por ……

El edificio además propone 3 niveles de oficinas para ofrecer al mercado inmobiliario. La estrategia de planta libre y núcleo de servicios facilita disponer de la flexibilidad que la circunstancia lo requiera.

La Azotea es pensada como un lugar de esparcimiento para los usuarios del edificio. Cuenta con parrillero y sector de mesas. En un sector mas restringido se encuentran los paneles solares y la terraza verde.

REPRESENTACION E IDENTIDAD

Volumetría, edificio icónico.

Partiendo de las intenciones expresadas en las bases de lograr un edificio como hito urbano que identifique a FAENI y CESGAR como dos instituciones de gran importancia en la región, y teniendo en cuenta las características del contexto tanto construido como cultural, presente y futuro, se propone un edificio de volumetría exenta que a través del uso creativo de materiales genéricos como el hormigón, el vidrio y la chapa galvanizada, logre una imagen icónica reconocible.

 

FLEXIBILIDAD

Tipología edilicia, edificio de oficinas.

El edificio se piensa siguiendo la tipología “edificios de oficinas” que se caracterizan por contar con un núcleo circulatorio y de servicios que conectan y sirven los distintos niveles de planta libre, lo que permite múltiples variantes de disposiciones y divisiones interiores. Así mismo, el volumen semi exento garantiza, por medio de las calibradas distancias hasta las medianeras, la apropiada ventilación e iluminación natural de la planta optimizando el uso de la superficie construida. La disposición de los patios mínimos reglamentarios según el nivel de los locales que ventilan, posibilita divisiones de hasta ocho oficinas independientes garantizando rentabilidad. Las plantas libres habilitan las múltiples divisiones en cada nivel y acercan la propuesta a las intenciones explicitas en las bases de ofrecer al mercado inmobiliario distintas unidades según tamaños y jerarquías. Es decir, la flexibilidad permite la readaptación de los espacios para distintos usos futuros.

SUSTENTABILIDAD Y MANTENIMIENTO

Otra característica de la tipología “edificios de oficinas” es la envolvente monomaterial uniforme muchas veces materializada por medio de un curtain wall. Teniendo en cuenta las premisas de sustentabilidad ambiental, el contexto climático y las reglamentaciones del código vigentes, se propone un cerramiento de dos capas. La capa interior es de vidrio laminado en aberturas corredizas de aluminio, que separa el interior de un exterior protegido por paneles de chapa galvanizada perforada y plegada que lo protege de los rayos del sol a la vez que permite la ventilación natural. Esta estrategia apunta a la eficiencia energética mediante soluciones técnicas que reduzcan el consumo y de este modo bajar los costos operativos. El espacio en semicubierto es alero, balcón o terraza según sus proporciones y permite la utilización de vegetación e integrar armónicamente interior y exterior.

La elección de los materiales nobles, durables y de bajo mantenimiento forma parte del criterio sustentable con el que se diseña el edificio. Pensado con proveedores y mano de obra local, teniendo en cuenta la huella de carbono durante la obra.

La utilización de paneles solares en la azotea y terraza verde en distintos niveles son también estrategias amigables con el ambiente.

 

 

CONCURSO INTERNACIONAL DE IDEAS EXPO 2023 – ESPACIO PUBLICO              

Ubicación/Location Buenos Aires , Argentina.   Año/Year 20198 Tipo/Type Concurso/Competition. Autores/Authors 2(A) Maria Eva Contesti, Guillermina Iglesia + Mauro Rici – Ale Nair Piñeiro – Rodrigo Herrera Muñiz – Nicolas Blanco – Juan Manuel Tomasin – Maria Noel Florance – Maria Eugenia Citterio – Ramiro Serra – Leandro Jelicic.

 “Los griegos no piensan en el edificio con independencia del lugar que lo enmarca ni de los edificios que lo rodean. La idea de nivelar el entorno les es completamente extraña. Aceptan el entorno tal y como la naturaleza lo ha creado, regularizándolo apenas, y su única preocupación consiste en armonizar la arquitectura con el paisaje.” “Le pisttoresquedansl´artGrec”, en Choisy Auguste, Histoire de l´architecuture (1899), Blibliothéque de l´image, Paris, 1996.

 

El proyecto propone abordar el paisaje a través de una pieza infraestructural, discutiendo las nociones de naturaleza y artificialidad. Pretende, además, enmarcar los variados objetos del predio creando lugares entre este nuevo elemento y los existentes.

El lugar es redefinido y no representado por medio de esta infraestructura que subraya la indeterminación y heterogeneidad del entorno. Es la dialéctica entre recorrer y mirar el paisaje lo que fundamenta la experiencia de la infraestructura.

 

La percepción en movimiento.

Se rechaza la visión estática del paisaje para fomentar la percepción del paisaje en movimiento. Se necesita del flâneur, quien confía en la motricidad real de sus piernas más que en la motricidad ficticia de su mirada. La infraestructura que se interpone entre él y el paisaje es ese elemento que enmarca, señala, oculta, advierte, sesga y mueve a la curiosidad y por lo tanto al movimiento. El primero de los elementos, la infraestructura, aparecerá inmóvil, mientras que el otro, el fondo, al contrario, parecerá tomar vida por el movimiento del espectador, y ofrecerá una sucesión de vistas muy variadas, como resultado de la combinación infinita de objetos sencillos.

Es la pieza infraestructural que, dispuesta en el lugar, señala la diversidad, dirige movimientos y miradas, y disloca al espectador interponiéndose entre él y el paisaje.

 

“Paralaje”, del griego paralaxis, cambio, desplazamiento de la posición aparente de un cuerpo debido al cambio de posición del observador. Conocimiento experimental del movimiento en el espacio.

Visión peripatética. Combinación infinita de objetos sencillos a través del movimiento.

La retícula abstracta se alza como representación de la materia inanimada. Retículas y grillas aparentes son abstracciones del mundo real en contraposición al realismo de la naturaleza. Elementos estáticos e inertes permanecen testigos al paso del tiempo, los climas, las estaciones, las horas.

“El hombre nunca ha podido vivir sin tramas. Ante el desorden aparente del mundo, tuvo que buscar los términos significantes, aquellos que, asociados entre ellos, hacían que su acción sobre el medio fuese más eficaz, aquellos que le permitían sobrevivir. Ante la infinita abundancia de objetos y seres, buscó relaciones entre ellos y, ante la infinita movilidad de las cosas, buscó invariables”.Labroit, Henri, La nouvelle grille, Éditions Robert Laffont, París 1974

 

La pieza infraestructural es una placa tecnológica que alberga las instalaciones, los servicios, los flujos de energía, los fluidos y personas recorren esta pieza tecnificada. Será soporte de los edificios existentes y contendrá los equipamientos y programas requeridos. Al mismo tiempo creará momentos de sombras y verdes, de luces led  y colores, de contemplación y de acción, arte digital y flora vernácula.

El puente, en su naturaleza infraestructural, revierte su carácter y se vuelve parque. Propicia estancias y momentos permitiendo movimientos de atravesamiento, llegadas y partidas.

“No hay accidentes en los jardines. Solo las construcciones de los hombres sufren accidentes. La naturaleza sufre cataclismos. Y luego cicatriza.” GillesClément,El jardín en movimiento, Edición Gustavo Gili, Barcelona 2012

Un parque no puede ser visto como una cosa en sí misma, sino más bien como un proceso de relaciones continuas que existen en una región física. Es un lugar inacabado y en constante cambio. Permanece como portador de lo inesperado y de la contradicción en todos los niveles de la actividad humana, sea social, política o natural. El arquitecto y el jardinero aparecen como constructores de procesos que guían mediante el uso de ciertos conocimientos técnicos pero no conforman objetos cerrados, estáticos.

La presencia estática de caminos y equipamientos son la estructura que contiene el movimiento constante de la biodiversidad.

Se trabaja con particiones, caminos, direcciones que remiten a las subdivisiones de suelo rural de las planicies. Como en una foto de la pampa, la presencia implacable de la horizontalidad se hace más evidente con la verticalidad de los eucaliptus dispuestos fila, los montes de espinillos que se alzan apenas y la soledad del ombú.

A modo de iconografía pampeana se presentan los ranchos y los fardos de alfalfa que son las sombras y los quioscos. 

Los irupés vienen a descansar a la orilla junto a lirios y jacintos.

Cuando se trabaja con y no contra el lugar se produce algo nuevo al registrar la complejidad de lo que viene dado.

El parque ya estaba ahí, es testigo del tiempo y portador de identidad.

 

 

Concurso Nacional de Ideas Refuncionalización y puesta en valor Muelle de los Elevadores

Ubicación/Location Ing. White, Buenos Aires, Argentina.   Año/Year 2018 Tipo/Type Concurso/Competition.   Autores/Authors 2(A) Maria Eva Contesti, Guillermina Iglesia + Gala Castellanos, Rodrigo Herrera Muñiz, Juan Manuel Tomasín, Nicolás Blanco.

https://www.instagram.com/p/Bsq8-kdhWht/

CONCURSO NACIONAL DE IDEAS  REFUNCIONALIZACIÓN Y PUESTA EN VALOR  MUELLE DE LOS ELAVADORES PUERTO DE ING. WHITE

A través de un deliberado borramiento de los límites, hibridación y expansión de las categorías  históricamente aceptadas de paisaje, arquitectura e infraestructura, y con la intensión de confrontar dichos deslizamientos disciplinares, la propuesta para el parque lineal del Muelle de los Elevadores ofrece relaciones dúctiles y fluidas dentro del territorio, a través del espacio, la gente, la actividad y el ambiente.

El paisaje no es imagen, sino que opera en términos de estrategias para la acción, marcos generativos, posibilidades diagramáticas, y modos de producción. La propuesta sugiere nuevas estrategias para la organización del contexto, programa, y espacio en un sitio específico. Ofrece maneras de mirar simultáneamente al mundo en diferentes escalas, permitiendo operar al mismo tiempo en campos geográficos, espaciales y sociales.

El interés en el paisaje se apoya en su capacidad para sintetizar un máximo de relaciones. Los atributos del paisaje resuenan en nuestra necesidad de flexibilidad y fluidez en este complejo mundo que cambia rápidamente. El paisaje se hace eco de nuestros deseos por lo horizontal y el horizonte, lo abierto, el vacío y la expansión. El paisaje trabaja como un espacio cívico abierto, como un campo de conectividad para la interacción y los eventos. El territorio, entendido como ambos, plano físico y fundación, es considerado, no como un territorio privado, pero sí como un ámbito o dominio primario compartido para que la vida pública se desenvuelva.

La propuesta para este parque lineal desarrolla una relación libre y experimental en la definición y creación del sitio en su totalidad. El impulso es de sitio específico, pero también amplio y territorial. Atrae lo cercano y lo distante, la figura y el fondo, lo urbano, el paisaje, y la arquitectura hacia unidades complejas y ambiguas. La propuesta trabaja a diferentes escalas a través de solapamientos de trazos geográficos e históricos, para establecer nuevas formas de co-habitación. La propuesta da forma a las fuerzas latentes y a las tensiones de las situaciones existentes – los vectores escondidos y las relaciones, ambas visuales e intangibles, funcionales y físicas.

Un elemento, la figura geométrica del círculo, es paisaje e infraestructura, marco para la acción, contemplación, topografía y refugio. Enmarca, señala, activa y dinamiza, al mismo tiempo que permite adaptaciones y superposiciones. La figura abstracta construye la especificidad del lugar.

 

LA ETAPABILIDAD COMO PROYECTO

La propuesta es ideada teniendo en cuenta la etapabilidad como recurso proyectual. Se instalarán en principio los elementos infraestructurales: 1-Arribo del tren, 2- Espacio para asamblea, 3- Centro de interpretación y área de servicios, 4- Caleta flotante y atracadero para pequeñas embarcaciones, y los paisajísticos: A- La plaza de bienvenida, B- Laberinto y límite con pólder, C- Plataforma de conexión.  Dichos elementos están enhebrados por el camino existente que, refuncionalizado, se convierte en la pieza estructurante del recorrido.

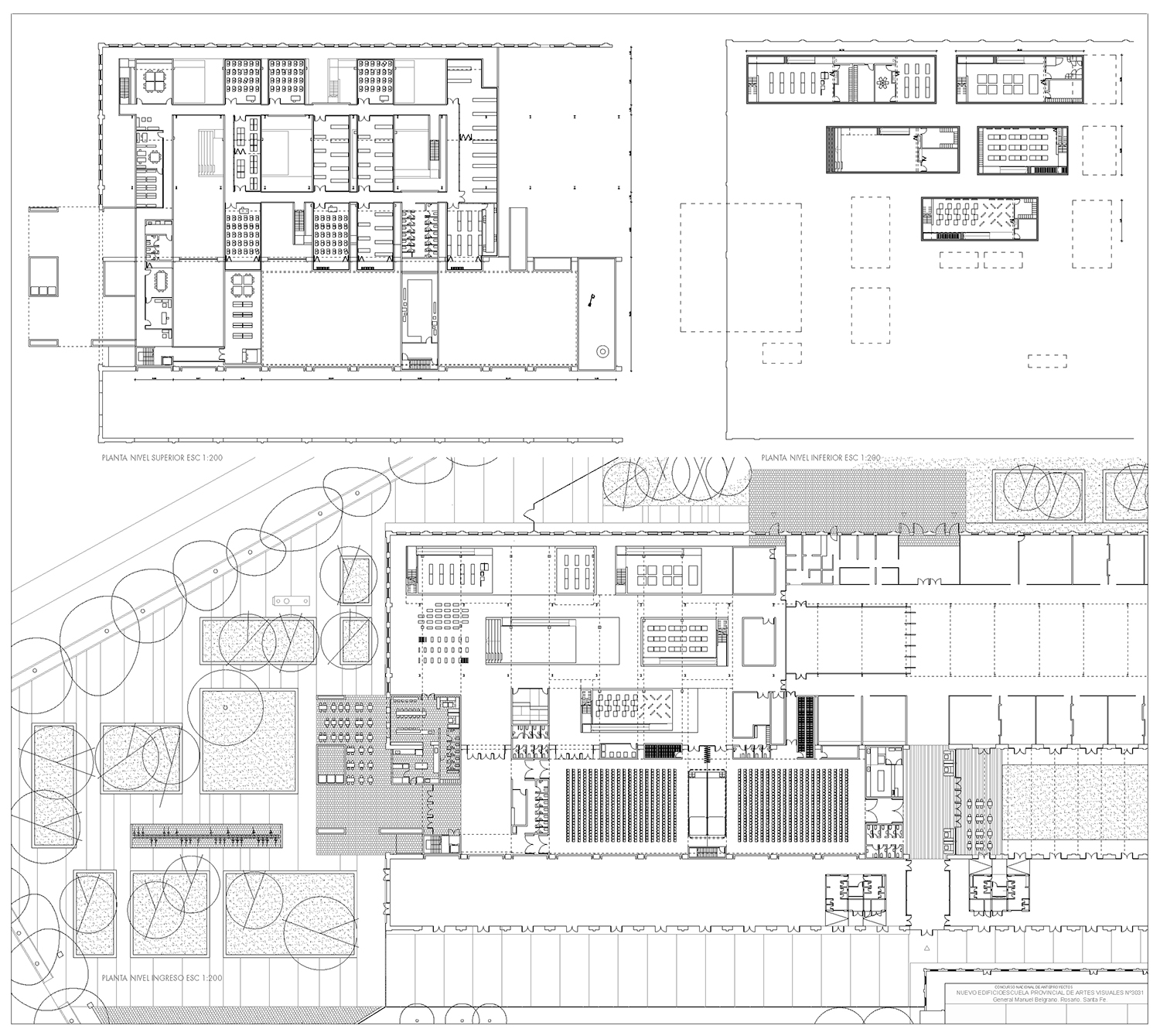
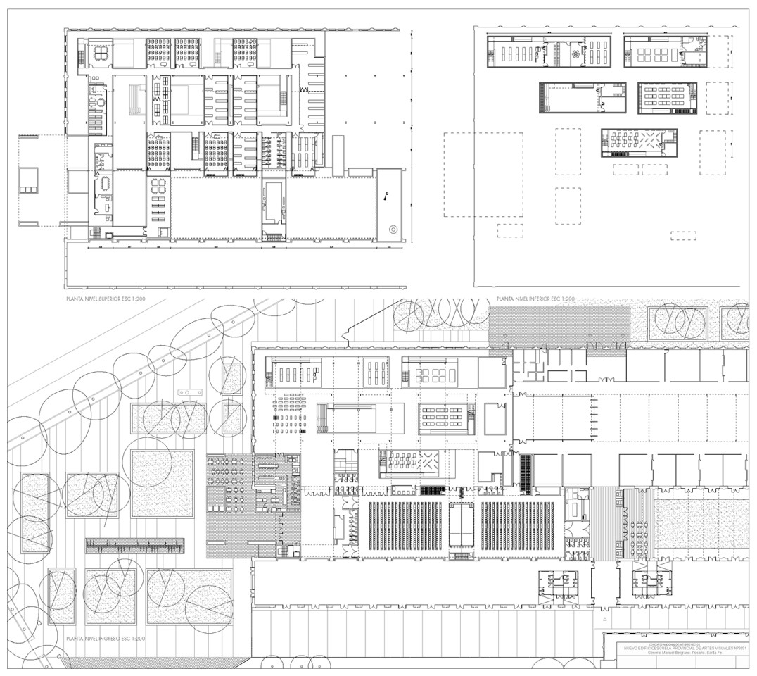
Concurso Nacional de Anteproyectos Nuevo Edificio de Escuela Provincial de Artes Visuales

Ubicación/Location Rosario, Santa Fe,Argentina.   Año/Year 2018 Tipo/Type Concurso/Competition. Autores/Authors 2(A) Maria Eva Contesti, Guillermina Iglesia + Carla Berrini, Gala Castellanos, Rodrigo Herrera Muñiz, Leandro Jelicic.

https://www.instagram.com/p/Bs88zWXH0KZ/

François Hartog advierte como desde finales de siglo xx el patrimonio y la memoria se afirmaron como categorías dominantes, si no agobiantes, que comprenden la vida cultural y las políticas públicas. Cómo intervenir sobre el patrimonio sin claudicar a nuestra tan mitigada confianza en el progreso. Cómo preservar y no renunciar a lo nuevo; qué y para quién conservar. Estos son interrogantes planteados por el concurso.

Para cualificar el espacio urbano y construir una distancia que permita apreciar y poner en valor el edificio patrimonial se propone extender la continuidad del plano público de la vereda. Este suelo, alternado con superficies verdes regulares, configura una nueva plaza y orquesta recorridos que modulan las diferentes perspectivas de aproximación al edificio.

La estrategia de intervención arquitectónica propone crear espacios dentro de un interior predeterminado. Generar un nuevo paisaje interior modelando y redefiniendo los perfiles del suelo y de la cubierta para activar diferentes situaciones. Una nueva espacialidad que se abre y potencia las cualidades materiales y espaciales del edificio propiciando nuevos modos de percepción y de dinámica a partir de la disposición del programa de actividades y de la propuesta constructiva.

https://www.instagram.com/p/Bs88opWHy9L/

IMAGEN 1

IMAGEN 2

IMAGEN 3

A los usos comunes (Sector A) que suceden a la nueva plaza, se propone sumar el uso del bar y el de la biblioteca, está última con acceso directo y controlado. Sobre la planta de ingreso al edificio se mantiene el nivel del plano público de suelo, y en continuidad se disponen:  el ingreso principal al complejo, el SUM, la cantina y el hall interno cuya expansión se extiende hacia el patio abierto de los talleres técnicos. La estrategia de distribución de estos usos propicia un lugar de reunión para todas las escuelas del complejo y con la comunidad.

En el sector de la Escuela de AAVV -sobre ese mismo nivel- se proyectan cavidades que organizan la ubicación de los talleres, consagran al espacio de la planta baja como una gran sala de exposición, y reactivan el capital material de los fosos y de las fachadas interiores preexistentes.

La disposición de un entrepiso alberga las actividades que necesitan mayor intimidad y resguardo (aulas teóricas, uso administrativo, biblioteca, sala de proyecciones) y los recortes proyectados en la cubierta generan un doble efecto. Sobre el nivel del entrepiso dotan a las aulas de luz y ventilación natural, y sobre el nivel de la planta baja orquestan una nueva modulación de la luz que multiplica los efectos espaciales.

Estas cualidades están reforzadas por la elección de una estructura independiente de hormigón visto para la ejecución de una serie de bandejas a nivel de entrepiso que sostienen la construcción liviana de los cerramientos y de los recortes de la cubierta.  

La estructura húmeda, artesanal y durable del hormigón contrasta y potencia las lógicas de reproductibilidad de las estructuras metálicas y su disposición permite explotar para el diseño de las instalaciones las condiciones funcionalistas implícitas en estas construcciones utilitarias. 

 

 

Concurso Nacional de Anteproyectos ampliación y remodelación del Museo Castagnino  Ubicación/Location Rosario, Santa Fe, Argentina.   Año/Year 20157  Tipo/Type Concurso/Competition.   Autores/Authors 2(A) Maria Eva Contesti, Guillermina Iglesia + Rodolfo Corrente.   Colaboradores /Collaborators Maximiliano Baudino, Carolina Covernton, Virginia Florez, Paula Olea

El proyecto busca minimizar el impacto de la nueva construcción, preservando el aire que envuelve el edificio del Museo Municipal de Bellas Artes “Juan B. Castagnino”. Parte de un trabajo con el vacío, con el espacio que existe entre el Museo y los árboles. A diferencia del Museo, una caja hermética, autónoma, la nueva construcción busca desocupar más que llenar el espacio de la plaza. El proyecto asume una geometría mediadora entre el prisma cristalino del Museo y la forma blanda y creciente de los árboles, planteando una estructura abierta de estancias vinculadas a la plaza.

El proyecto propone la construcción de un zócalo de 4 metros de altura, que traza el perímetro literal de la copa de los árboles. Este zócalo, una especie de barranca artificial desde donde dominar y contemplar entre masas arbóreas el espacio de la plaza, fabrica además una terraza de posición privilegiada y protegida para la expansión del Bar-Restaurante, del Auditorio y del Taller de Educación. Esta construcción de baja altura busca mantener la escala doméstica de la plaza frente al barrio. Se instala por debajo del nivel de las ventanas del Museo, y se retira de éste por medio de dos patios, para permitir la iluminación natural de las salas existentes.

Un empuje que parte desde el centro del museo extiende la nueva ampliación en tres direcciones, que se corresponden con tres de los cuatro salientes que presenta la caja, produciendo un descentramiento de los mismos, orientado por el espacio en negativo que dejan los árboles.

En esta dirección se ubican los tres cuerpos que emergen por encima del zócalo de 4 metros, que corresponden a los programas del Bar-Restaurante, el Auditorio y las Salas de exposición, junto con el Taller de educación. Estos bultos están retirados de la edificación existente unos 3 metros, lo que permite la entrada de luz a las salas del museo de Hernández Larguía. El volumen de las Salas de exposición, el de mayor altura, iguala la altura del Museo, y se ubica del lado de Pellegrini, manteniendo la escala urbana de la avenida. Los otros dos volúmenes, el del Bar-Restaurante y el del Auditorio, son más bajos y buscan adecuarse a la escala domestica de las calles Alvear y Montevideo.

Plaza y Paseo

El proyecto plantea mantener el Paseo Dr. Miguel J. Culaciati en su trazado diagonal a la Plaza, produciendo un leve desplazamiento del mismo, pero activando su uso con el encauzando de su flujo al interior del edificio, dando ingreso al área pública del Museo con doble ingreso.

En la Plaza se mantienen la casi totalidad de árboles existentes. Se intensifica la continuidad de algunas especies existentes acentuando las dos direcciones principales y oblicuas de la plaza, que siguen los ejes de rotación del Museo: el eje perpendicular de entrada al Museo, con la repetición de Cedros sobre el lado de Av. Pellegrini, y el eje transversal materializado por el paseo diagonal, con la plantación de Cedros y Sóforas a cada lado. Se aporta además el completamiento de algunas especies de borde de vereda, con la alineación de Brachichitos sobre Alvear, y de dos especies nuevas de Lapachos rosados sobre Bv. Oroño. 

Concurso ACA SALUD Ubicación/Location Rosario, Santa Fe, Argentina.   Año/Year 2013 Tipo/Type Concurso/Competition.   Autores/Authors 2(A) María Eva Contesti, Guillermina Iglesia + Rodolfo Corrente.   Colaboradores/Collaborators Alejandro Perriard, Virginia Florez, María José Manzi.

22M

El presente proyecto para el edificio del ACA Salud propone una optimización máxima en la ocupación del edificio existente, y una ampliación del mismo que ocupa la totalidad del espacio hacia la calle y de la parcela contigua, con un volumen de altura similar (cuatro plantas más sótano) al de la construcción existente.

 

Mímesis

La nueva construcción es una estructura de columnas de hormigón armado situadas a cada lado de la parcela que deja libre todo el ancho de la parcela contigua. De esta manera el proyecto propone una planta libre unificada, que aprovecha el ancho completo que resulta de la unificación de ambas parcelas.

 

Planta Abierta

Una grilla ortogonal organiza el espacio al interior de las diferentes plantas.  La preferencia por una planta abierta e indeterminada se debe al reconocer la evolución en las modalidades de trabajo y las dinámicas laborales. También propone espacios adaptables, capaces de aceptar nuevos usos.

 

Frente y Fondo

Esta grilla colisiona al fondo con un espacio abierto, una especie de isla que crece a partir de la vegetación existente, transformándose en un jardín vertical exuberante hacia el que abren las oficinas. El proyecto propone la utilización de filtros vegetales como estrategia de control solar. Las preexistencias en el sitio, edificios en altura y árboles de gran porte tanto en la vereda opuesta como en el jardín del fondo son complementados con la plantación de nuevos árboles sobre la vereda y en el centro de manzana.

Se privilegian las vistas amplias a la ciudad, la calle, los árboles, el cielo, sin condicionantes que obstaculicen las vistas.

De esta manera el espacio de oficinas se extiende entre espacios arbolados: los árboles existentes y nuevos de la calle y los del jardín del fondo.

 

Programa

La distribución del programa dispone en planta baja las áreas de oficinas con acceso público y las oficinas con horarios rotativos de 24 hs. Se establece un acceso común, claramente diferenciado para el público y el personal empleado.

Las plantas superiores alojan el resto del programa de oficinas, con el área gerencial sobre el frente del edificio.

 

Vacíos

A partir del vacío que presenta el edificio existente sobre la calle, un espacio en altura crece y se expande hacia el edificio ampliado, conectando en vertical ambas construcciones. Este vaciado culmina en un lucernario sobre cubierta, que arroja una luz controlada.

Fachada

Entre los dos núcleos verticales de circulación  aparece una vereda que separa un programa más jerárquico o público de otros más privados o sin atención al público.  Tanto horizontal como verticalmente el programa gradualmente evoluciona desde espacios casi completamente accesibles a niveles se acceso restringido. Se elimina el ascensor del fondo y sólo se utiliza el primer tramo de la escalera contigua. Una escalera de incendios se ubica en la nueva construcción, contra la medianera.

Un nuevo ascensor se adosa al ascensor existente junto a la calle, concentrando de esta manera todo el movimiento del personal hacia el frente del edificio. Reflejo del movimiento de la calle en el interior.

La fachada del edificio cubre todo el ancho de la parcela. Se ejecuta en placas de hormigón armado con una impresión de texturas en distintas orientaciones y densidades, como las de un follaje. Carpinterías practicables ofrecen la alternativa de una ventilación natural.

 

Etapabilidad

El crecimiento contemplado para una segunda etapa se plantea como si fuera el desarrollo natural de una construcción de una sola etapa, es decir: creciendo con las dos plantas suplementarias hacia arriba y extendiendoen horizontal el sector de la planta tercera. Se prevé la extensión del núcleo de ascensor y escaleras y el posterior traslado de las infraestructuras de aire acondicionado y de reserva de agua a la parte superior del edificio.

 

Flexibilidad

La propuesta contempla la colocación de un piso técnico compuesto por paneles y un sistema de apoyos elevado que facilita la instalación de cableado eléctrico y redes. Un cielorraso suspendido unificado aloja el resto de las instalaciones complementarias de iluminación, climatización y sanitarias. Los tabiques interiores que dividen las distintas áreas de trabajo son de cristal templado transparente y pueden ser complementados con cortinados o ploteos vinílicos que permitan mayor o menor grado de privacidad y transparencia.

Esta estrategia permite diferentes configuraciones del espacio dependiendo de las necesidades cambiantes de la empresa y de los avances tecnológicos que afectan las formas de trabajo.

 

Climatización

El proyecto propone la utilización de filtros vegetales como estrategia de control solar. Las preexistencias en el sitio, edificios en altura y árboles de gran porte tanto en la vereda opuesta como en el jardín del fondo, son complementadas con la plantación de nuevos árboles sobre la vereda y en el centro de manzana. Los ventanales batientes de cristal transparente con vista hacia los jardines generan un ambiente de trabajo en continua relación visual con la vegetación y dan la posibilidad de una ventilación natural. Asimismo el cerramiento del edificio, paneles de hormigón confeccionados con cemento blanco y texturado, mitigan la influencia de la radiación solar.

Esta estrategia bioclimática es complementada con un sistema mecánico optimizando su rendimiento y consumo. El sistema adoptado es VRF que por su funcionamiento de volumen de refrigerante variable reduce el consumo energético más de un 30% comparado con los sistemas de fancoils tradicionales. Posee un sistema electrónico de controles individual y central que permite la sectorización de acuerdo a las necesidades. Es un sistema versátil que se adapta a edificios existentes y puede ampliarse agregando módulos nuevos en caso de crecimiento asegurando la flexibilidad. Las unidades interiores serán instaladas en el cielorraso suspendido ocultas y desde las mismas el aire será distribuido al ambiente a través de un conducto lineal ubicado en las buñas de las uniones entre placas de cielorraso. De este modo se evita la aparición de las rejillas en cielorraso concentrados puntualmente sobre los puestos de trabajo. El agua de condensación del aire será dirigida desde las unidades exteriores hacia los jardines para ser aprovechada para riego.

Concurso Ministerio de Salud de Buenos Aires Ubicación/Location Buenos Aires, Argentina.   Año/Year 2013 Tipo/Type Concurso/Competition.   Autores/Authors 2(A) María Eva Contesti, Guillermina Iglesia.   Colaboradores/Collaborators Alejandro Perriard, Virginia Florez, María José Manzi.

Un todo incompleto

Partiendo de un concepto en donde el edificio está desarrollado desde un sistema repetitivo no compositivo, donde se reconoce un orden no jerárquico; el proyecto propone trabajar con las partes de un todo incompleto que dispone llenos y vacíos alternadamente. La objetivación de las piezas  sugiere una lógica anónima sin significación. 

La disposición de los objetos en el predio produce una nueva conexión entre el edificio del S.A.M.E. y la Av. Amancio Alcorta, prolongando y naturalizando el recorrido, imitando los senderos existentes en el sitio.

 

Mímesis

El paisaje inmediato de los pabellones exentos del predio del Hospital Muñiz infecta al sistema dotándolo de sentido, al mismo tiempo que multiplica la superficie de intercambio entre interior  y exterior.

La elección de materiales translúcidos y transparentes complejizan la relación sensorial con el paisaje mediante reflejos, proyecciones y desfiguraciones.

 

Programa

Dada la inestabilidad programática y la impredecibilidad de los cambios en las tecnologías que afectan la manera de ocupar el espacio, se adopta un sistema de bandas de programa que posibilitan múltiples configuraciones.

Cuestionando la torre como tipología el programa se organiza horizontalmente creando planos de programas superpuestos. De esta forma se consigue la predominancia del movimiento en sentido horizontal.

Concurso Vivienda Social BIAU 2014. Ubicación/Location Rosario, Santa Fe, Argentina.   Año/Year 2014   Tipo/Type Concurso/competition.   Autores/Athors 2(A) María Eva Contesti, Guillermina Iglesia.   Colaboradores/Collaborators Lautaro Del Federico, Alejandro Perriard.

La propuesta plantea una inversión de la relación entre el espacio público y el espacio privado. Las fricciones cambian de dirección, de horizontal a vertical, y los lugares comunes se confunden con los estrictamente públicos y los estrictamente privados.

El conjunto

La planta baja libre, esa sombra, será el lugar comunitario que albergará actividades barriales, encuentros y otros eventos. El proyecto para este conjunto de viviendas revaloriza la vereda como el espacio público por excelencia donde el barrio cobra vida.

El playón deportivo existente es para el barrio un lugar de reunión y centro de actividades populares, único espacio público en la zona. La propuesta entiende esta plaza espontánea como un bien a preservar, tanto como sus medianeras cuidadosamente pintadas.

El volumen se eleva dejando una planta baja libre, prolongando la vereda hacia el fondo del lote y la transparencia del límite entre las áreas de uso privado y las de uso público integra ambos espacios convirtiéndolos en uno.

La nueva masa edificada se separa de los ejes medianeros creando espacios intersticiales, y de esta manera, los muros existentes toman valor patrimonial.

Tomando una fisonomía similar a la Fábrica Bertini, identitaria del barrio, e incorporando patios, el volumen se descompone en unidades individuales, adoptando la escala residencial del barrio.

Por último, el paisaje se hace presente en cielo y suelo. El árbol se hace lugar y el plano del suelo se inclina hacia la vereda mostrando su paisaje.

 

La unidad

La repetición de una unidad habitacional tipo ante a la condición de lote urbano se cierra hacia los terrenos linderos creando privacidad e independencia. La operación de repetición de las unidades es adaptable a diferentes lotes y absorbe, a la vez, las condiciones específicas de un sitio particular.

Cada unidad está pensada dentro de un prisma rectangular de base cuadrada. De los cuatro cuadrantes de la planta que se repiten en tres niveles, uno es vacío. La circulación se desarrolla verticalmente sobre un lado de la unidad. Las escaleras y los techos inclinados dan forma al espacio interior mientras que sutiles variaciones volumétricas terminan de esculpir el vacío.

La unidad residencial plantea una manera sustentable de habitar. La ventilación cruzada oblicua y ascendente refresca los ambientes interiores. Los espacios sociales del segundo nivel reciben la iluminación pareja y natural del lucernario orientado al sur. Una superficie absorbente recibe las descargas pluviales de cada cubierta. Debido a la inclinación de los techos, podrán instalarse paneles y termo tanques solares.

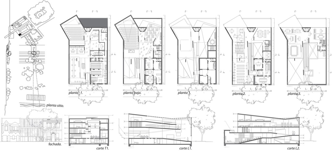
Concurso Ampliación del Colegio de Arquitectos de la Provincia de Santa Fe CAPSF y Cad2 Ubicación/Location Rosario, Santa Fe, Argentina.   Año/Year 2013   Tipo/Type Concurso/Competition.   Autores/Authors 2(A) María Eva Contesti, Guillermina Iglesia + Rodolfo Corrente, Adrian Luchini.   Colaboradores/Collaborators Lautaro del Federico, Alejandro Perriard.

 

MENCIÓN HONORÍFICA

 

Trabajamos con el “entre”, lo plural, lo expandido, lo adaptable…

El ingreso debia ser por el medio. Ese espacio entre lo existente y lo nuevo. La rampa suave que vincula la vereda con el atrio en cuadruple altura. Esta acción reitera la presencia de la barranca y su voluntad de ir aproximándose al río. De este modo la circulación, como otra topografía, permite una lectura inmediata de los distintos niveles del edificio y las visuales hacia el agua.

El árbol, luego la fachada evidente, reflexiva del nuevo edificio, conforma la continuidad horizontal con la fachada existente.

La columna del ascensor actúa como una especie de fulcro repartiendo en forma de “Y” el movimiento de las rampas hacia la barranca y al interior de los programas, que van tomando lugar como afluentes de este trayecto.El espacio de circulación además articula la conexión entre los dos edificios y es por ende el espacio semipúblico que conecta vertical y horizontalmente.

El proyecto sería organizado como una serie de niveles abiertos de máxima transparencia, adaptables con tabiques de vidrio y cortinas a los distintos usos. Un edificio de estancias en continuidad diferenciada. Esta estrategia permitirá adaptar los niveles a los usos establecidos por las distintas etapas. Si el edificio existente registra en sus espacios lo fundamental de las arquitecturas del siglo pasado, con espacios definidos y segregados, el nuevo hace algo similar pensando en el presente, y quizás también en lo que suceda de inmediato, cuando la tecnología continue agilizando la interacción y se requieran lugares flexibles para los distintos trabajos

Las losas de cada nivel se soportan con tabiques de hormigón de diferentes largos, desplegados por el nuevo edificio como fragmentos de una medianera despiezada, contrapuestos al sistema tradicional de muros portantes.

La cubierta abraza ambas estructuras para reiterar lo obvio: dos instituciones cobijadas bajo un mismo techo, con objetivos similares y funciones comunes.

Flat Lot Competition. Re Imagening the parking lot.   Ubicación/Location Fint, Mi, USA.   Año/Year 2013   Tipo/Type Open Competition.   Equipo/Team María Eva Contesti, Carla Berrini, Lautaro del Federico, Peter Elsbeck.

“Since 1820 , entrepreneurs and residents have transformed fields, meadows and woods into habitable space. Suburbia was presented as the fields of dreams, the site of promises and fantasies. It symbolized the landscape of the imagination where Americans situate ambitions for upward mobility and economic security, ideals about freedom and private property, and longings for social harmony and spiritual uplift. Americans have idealized the house and the yard rather than the model neighborhood or the ideal town.” Dolores Hayden - Building Suburbia

 

Paradigms have shifted-- sustainability, efficiency, public health, community, and social interaction are beginning to trump the now traditional desire for suburban expansion. To this, we propose ReUrbanize-- a transformative space that posits and examines the future of commuter surface parking lots, a common byproduct of suburbanization.

 

We recognize that change does not happen over night. We propose a gridded canopy based on the existing parking space that can expand and contract as needed across a sea of parking. It covers a flexible space that facilitates these new urban modes while still maintaining the original function of the flat lot below. In the interim, ReUrbanize provides a place of respite, activity, and amenity with endless possibility. 

 

We symbolically repurpose the tire (and the parking space= as a nod to the automitive history of Flint, but more importantly a tool for re-imagining it´s future. Combined with a repurposed chain link fence, this reuse is both sustainable and cost

Concurso Puesta en valor del espacio público del Barrio Inglés. Ubicación/Location Rosario, Santa Fe, Argentina.   Año/Year 2012   Tipo/Type Concurso / Open Competition.   Autores/Authors María Eva Contesti, Carla Berrini.   Colaboradores/Collaborators Lautaro del Federico, Franco Varesi.

 

TERCER PREMIO

 

Valorar el patrimonio nos enfrenta con la tarea de reconocer e identificar los fragmentos que constituyen la memoria de un sitio

 

The competition program requires the renovation of the old British neighborhood. The master plan includes a landscape, a new football museum, parking spaces, and the relocation of an existing senior center. The area is historically and culturally rich, keeping the remains of the city’s initial commercial and exchange activities such as train tracks, storehouses, silos, as well as housing for the workers. The project presents the new senior center building as the a central piece that will articulate the entire plan. It sits on a topographically altered landscape as a floating carved stone. Coming down in a gradually ramped walkway, the space below the building becomes an obscured gathering place from where selected historic landmarks are framed by the subtractions of the mass above.

 

Steedman Competition. Sam Fox School of Design and Visual Arts.   Ubicación/Location Stl, Mo, USA.   Año/Year 2012   Tipo/Type Concurso/Compeition.   Autores/Authors María Eva Contesti, Carla Berrini.   Colaboradores/Collaborators Lautaro del Federico, Franco Varesi.

“The work is not put in a place, it is that place” Michael Heizer

 

The new building (NB) for the Sam Fox School of Design and Visual Arts at Washington University in Saint Louis assumes the urban condition recognizing Skinker and Forsyth Blvd as natural connections to the neighborhood and the city. While the original campus layout organizes itself towards inner courtyards, the position of the buildings at the east side reverses, facing Forsyth Blvd. The completion of this ensemble of buildings intensifies this relation and reinforces the public character through programmatic areas.


SIMULTANEITY vs. SEQUENCE

The sequences of activities in the existing buildings follow a pattern that identifies inside/outside, occupied / void spaces as educational /social activities. 
The NB overlaps programmatic areas and connections; opened and enclosed spaces; pedestrian and vehicular traffic; public and private events, both vertically and horizontally. These overlays strengthen visual and physical connections with the built environment, and generate areas of friction and interaction. The three levels of interconnected spaces allow faculty, students, and visitors to move simultaneously through well defined but continuous spaces.

 

Nature and architecture maintain a figure/ground relation where nature emerges as the figure and architecture lays in the background. Well considered terraces construct a plaza for the Sam Fox community. The election of America´s Mid West native vegetation promotes the development of a complex natural environment, wild grasses and flowers that respond to seasons and climate inspire sustainable consciousness and practices. Both building and nature witnesses the seasonal changes and incorporates the fluctuating light, colors and events to the interior spaces. Filtered light, cross ventilation and the collection of rain water are part of a number of strategies to achieve a qualify environment.

Concurso Biblioteca central del bicentenario.   Ubicación/Location Rosario, Santa Fe, Argentina.   Año/Year 2010   Tipo/Type Concurso/Compeition.   Autores/Authors 2(A) María Eva Contesti, Guillermina Iglesia.

Un edificio hace ciudad, crea límites, construye urbanidad. 

Un edificio hace paisaje, lo transforma e integra.

Un edificio sustentable: económico, modular, reutilizable, adaptable. 

 



El espacio de la biblioteca se plantea como una cinta continua enteramente accesible, subdividible según las necesidades actuales y fácilmente adaptable a nuevos requerimientos. Su estructura   modular posibilita distintas disposiciones. 


La reformulación del claustro como lugar abierto a la comunidad y que a la vez es construido por la organización concéntrica de los espacios interiores invita a la interacción y participación del público. Un espacio contenido de fuerte presencia institucional  que construye espacio público. Simbólicamente y tipológicamente remite a las instituciones educativas y es entendido como tal.


El barrio donde se emplaza el edificio es de casas bajas y algunos edificios de planta baja y tres pisos de baja densidad. Consideramos que el edificio implantado debe respetar la horizontalidad del lugar, dialogando con los edificios adyacentes y con la vegetación existente. Sus variados espacios verdes, plazas, parques y los terrenos del regimiento 11 de infantería hacen que los vecinos participen permanentemente del espacio público, habitado por jóvenes practicando deportes, niños jugando en las plazas y adultos paseando y disfrutando del aire libre. La intención de la propuesta es interpretar el uso del espacio y mantener su caracter.


CMD SUR Rosa Ziperovich

El edificio del Centro Municipal de Distrito Sur constituye un polo de atracción de personas que acuden a él permanentemente a realizar trámites. Se producen allí, además, distintas actividades culturales tanto durante la semana como durante los días del fin de semana ya que cuenta con un auditorio de óptima calidad. Los espacios culturales propuestos en la Biblioteca Central del Bicentenario complementan aquellos del CMD SUR, no superponiendo usos, no compitiendo, sino reforzando y creando en conjunto un polo cultural para la zona sur de Rosario.


El espacio cultural de la biblioteca es planteado como un gran contenedor que albergará múltiples eventos. Se plantean espacios genéricos, lo que promoverá el desarrollo de actividades como ferias, congresos, desfiles, recitales, exposiciones, etc. El patio adyacente será ocupado por dichas actividades durante épocas de buen clima. 
 

The new central city library is located in a low density neighborhood. One and two story family houses along with a few three story apartment buildings form this area. Particularly, a considerable amount of public plazas and green open spaces are found in the surroundings of the library site.

The project intents to occupy the entire lot respecting the existing heights. There is no need for adding more open space. To reach the total area required it is necessary to reduce the footprint. A cloister is the result. A self contained qualified space that  symbolizes a civility and institution.
One side of the resultant volume is lifted producing the building entrance.

Programatically, a continuous belt accommodates different areas. Lecture rooms, book shelves, information desks, reception, cafeteria, lounges and services areas easily adapt in this flexible fluctuating space.
The auditorium and exhibition area work independently and maintain a generous dialog between interior and exterior.

Concurso Refuncionalizacion Mercado Rafaela.   Ubicación/Location Rafaela, Santa Fe, Argentina.   Año/Year 2011   Tipo/Type Concurso/Compeition.   Autores/Authors 2(A) María Eva Contesti, Guillermina Iglesia.   Colaboradores/Collaborators Mauricio Pedra Corvera, Alejandro Perriard.

La altura como estrategia de referenciación en el espacio.



Reconociendo el emplazamiento como parte de la ruta cultural de la ciudad, así como  complemento del paseo comercial céntrico, este nuevo complejo tiene como premisa la recuperación del edificio del mercado desde su uso original, además de poner en valor el espacio público como el lugar de encuentro social. 

 

La estrategia de recuperación del viejo mercado, es otorgarle la impronta comercial original como elemento estructural urbano. Además de la rehabilitación edilicia a su estado original, éste será el elemento clave y distribuidor de un complejo amplio. 

 

El edificio propuesto en altura es la clave para la construcción de un zócalo público. En el predio libre adyacente al mercado se propone una plaza pública que a su vez es la entrada principal al complejo cultural. Una planta baja permeable y abierta, permite el atravesamiento del complejo y la integración con el entorno urbano.

 

El centro de convenciones, junto con el hotel, se articulan con el edificio del mercado al tiempo que funcionan independientemente. Los locales comerciales, sobre la calle Ciudad Esperanza, devolverán la vida a este sector, conectándose por medio de un pasaje peatonal al boulevard Santa Fe. 

 

El complejo cultural en altura significa la imagen de lo público. 

 

Rafael Iglesia: Fuerzas en juego.

 

Experimentación indisciplinada

Experimentar, ensayar en el hacer asumiendo el fracaso como posibilidad; intentar despojarse del lenguaje de la disciplina y de los objetos preconcebidos; hablar de verbos y no de sustantivos: esas eran sus maneras de trabajar. Rafael pensaba que el arquitecto no es quien construye sino quien da identidad a través de un proyecto, quien interpreta. Prefería estar alerta antes que informado. No miraba arquitectura, sus obras estaban influenciadas por la literatura, la vida cotidiana y su gran capacidad de observación.

Pensaba que todo buen arquitecto debe tener un talento innato y una dificultad adquirida. Su dificultad adquirida era repensar la relación de las fuerzas, el peso y la gravedad.

 

Cuando el problema es la solución

Rafael decía que para él el asunto de la arquitectura fue siempre sostener un peso. En sus obras propuso volver a pensar la relación con el suelo invirtiendo la cuestión del peso, siguiendo el modelo de lucha oriental en el que cada contendiente vuelve a su favor la fuerza del oponente. Los elementos que componen sus estructuras son apilados inestablemente, sin vínculos y por fricción. El peso o la palanca es siempre lo que estabiliza el conjunto.

 

El paisaje nos hace paisanos

Su obra se sensibiliza con el lugar, el horizonte, la inmensidad, la vastedad. Rafael decía que nuestra historia es corta y el paisaje inmenso, que somos más geográficos que históricos. En la pampa la horizontalidad predispone nuestra manera de mirar. Entre el cielo y el horizonte sin pausa, una línea trazada a mano alzada define nuestro paisaje.

 

Uno entre otros

En sus escritos insistía con la idea de que la arquitectura debía recobrar su rol social creando lugares de encuentro. Era muy crítico con las manifestaciones físicas de la segregación de la ciudad y advertía incansablemente que vivir en una sociedad fragmentada sólo contribuía a empeorar el problema de la inseguridad. Se preguntaba constantemente cuál será el rol de la arquitectura en la era de la información, en un mundo donde las actividades del hombre pierden su anclaje espacial. Y si bien prefería multiplicar los interrogantes a clausurarlos con una sola respuesta, sostuvo siempre que la arquitectura deberá seguir creando espacios que convoquen e incluyan a las personas, ámbitos donde las diferencias se acorten y en los que podamos experimentar que, definitivamente, somos los otros.

Con motivo de la conmemoración del aniversario de fallecimiento del distinguido arquitecto rosarino Rafael Iglesia, el estudio 2(A)Dos Arquitectas, el Centro Cultural Parque de España y la Facultad de Arquitectura de la Universidad Abierta Interamericana convocan al concurso fotográfico Rafael Iglesia en fragmentosEn el marco de las muestras internacionales de arquitectura Fuerzas en juego – Rafael Iglesia y La Raíz Abstracta – Alvar Aalto, que se expondrán desde el 13 de octubre hasta el 20 de noviembre de 2016 en las Galerías del Centro Cultural Parque de España.

El concurso invitó a estudiantes y profesionales de Arquitectura, aficionados o profesionales de la Fotografía y al público en general, a retratar la obra del arquitecto rosarino Rafael Iglesia. Un mosaico de miradas que, a modo de investigación, aborda su obra. No se pretende mostrar las obras en su totalidad, sino rescatar fragmentos, pequeños sectores, detalles, encuentros de materiales, y mostrar el manejo de la estructura, la forma y los espacios, dando cuenta de las constantes búsquedas que atravesaron el pensamiento de Iglesia.

Abajo, todas las fotografías presentadas.

Informes: concurso.fragmentos@gmail.com

Más información  http://ccpe.org.ar/

TANGRAM ECOSOCIAL es una clínica intensiva de proyecto que tuvo lugar en el Túnel Cad2, Centro Cultural del Colegio de Arquitectos de Rosario, durante los días 21, 22 y 23 de Mayo de 2015; dictada por Felipe Mesa (plan:b arquitectos).


Esta actividad fue organizada por COLECTIVO IMPAR, apoyada por el Colegio de Arquitectos de la Provincia de Santa Fe, el CAD2 y auspiciada por Rosario Designio Aberturas, Ferretería Baltazar, Grupo Asegurador La Segunda y Fundar.

 

Facebook/ClinicaDeProyecto

COLECTIVO IMPAR

Maria Eva Contesti | Rodolfo Corrente | Guillermina Iglesia | Veronica Peralta | Alejandro Perriard | Santiago Vescovo | Juan Germán Guardati

Orilla Adentro es una clínica intensiva de proyecto que tuvo lugar en el Túnel Cad2, Centro Cultural del Colegio de Arquitectos de Rosario, durante los días 23, 24, 25, 26 y 27 de Junio. 

Esta actividad fue organizada por COLECTIVO IMPAR Y apoyada por el Colegio de Arquitectos de la Provincia de Santa Fe, el CAD2 y la Facultad de Arquitectura de la Universidad Abierta Intearmericana.

Participaron como docentes, críticos y motivadores proyectuales los reconocidos arquitectos Marcelo Villafañe de Rosario y Javier Corvalán, Jose Cubilla, y Sergio Fanego de Asunción, Paraguay.

 

https://www.facebook.com/pages/Cl%C3%ADnica-de-Proyecto/498442426922894

 

Una semana intensa en la que compartimos experiencias y aprendizajes. Conocimos mucha gente linda que vino de Asunción, Córdoba, La Plata, Buenos Aires, Resistencia. Intercambiamos opiniones con arquitectos que admiramos y pudimos llegar al final del proceso con muchas preguntas y algunas respuestas. De eso se trata. Muy importante fue la buena onda de todo el grupo y la generosisima colaboración del Negro Villa, Joseto, Sergio y Javier. Muchas gracias a todos por participar.

 

COLECTIVO IMPAR

Maria Eva Contesti | Rodolfo Corrente | Guillermina Iglesia | Veronica Peralta | Alejandro Perriard | Santiago Vescovo

Maria Eva Contesti | Carla Berrini 

Desde el año 2012 se lleva a cabo el ciclo de charlas y entrevistas llamado 1x1 Obras de Arquitectura por Arquitectos en los que convocamos a arquitectos profesionales a responder una pregunta : ¿Qué miran los arquitectos cuando miran arquitectura? Se trata de una serie de charlas donde, en cada ocasión, un arquitecto invitado expone su visión de una o varias obras de otro arquitecto, o bien propone el seguimiento de un problema específico de la disciplina en distintos proyectos. La elección del tema y las obras dependerá en todos los casos del invitado. Creemos que el mirar de un arquitecto traza, especialmente en las obras de otros arquitectos, caminos inesperados; puede detenerse minuciosamente en un detalle, soslayando cuestiones de mayor importancia, y resignificar todo un trabajo a partir de ese detalle. La mirada de un arquitecto establece relaciones allí donde (hasta el momento) no había nada, construye, explora y se apropia de las obras a través de sus recorridos visuales.

fotos Alejandro Perriard

fotos Leila Poveda | Lautaro Del Federico

El acto de mirar era para él una forma de oración, se fue convirtiendo en un modo de aproximarse a un absoluto que nunca conseguía alcanzar. Era el acto de mirar lo que le hacía darse cuenta de que se encontraba  constantemente suspendido entre la existencia y la verdad.

 

John Berger, “Giacometti”, Mirar, GG. SA, Barcelona 2001, p.166

 

Hacer es nuestra manera de acercarnos a un modo de mirar específico. En cada proyecto elegimos el punto de vista para aproximarnos al proceso de una manera determinada. Teniendo como punto de partida los contextos físicos y culturales de cada encargo, se cuestionan las tipologías y los programas tradicionales priorizando la cualificación espacial. El intersticio entre el contenedor y el contenido y la relación entre las cosas son los temas recurrentes de nuestras búsquedas. 

 

2(A) DosArquitectas es un estudio de arquitectura rosarino que fundamos en el año 2009. Cuando nombramos nuestro espacio de trabajo quisimos que refleje paridad y género, ni dos apellidos, ni una marca, sino la relación que se genera entre dos mujeres arquitectas que aportan cada una desde su individualidad, experiencias y recorridos. Nuestra dinámica de trabajo es un sistema abierto y horizontal en una estructura que permite fluctuaciones. Se forman equipos diversos de acuerdo a los encargos y proyectos que llevamos adelante. Nos asociamos con colegas de nuestra y otras disciplinas para desarrollar proyectos diversos y concursos nacionales e internacionales. Creemos en lo colectivo, lo plural, lo expandido.

 

 

Maria Eva Contesti,  es arquitecta por la Facultad de Arquitectura de la Universidad Nacional de Rosario en el año 2003, y Master in Architecture en Washington University in Saint Louis, Missouri, USA, distinguida con el Premio Best Degree Project Award en el año 2007.

 

Cuenta con premios y reconocimientos como el Primer Premio Obra Contruida año 2022 y año 2020 en categoría industial, Mención Especial 2022 en categoría residencial por parte del Colegio de Arquitectura y Urbanismo de Rosario. Premio Soy Arquitecta 2022 como proyectista y desarrolladora , Mención Honorífica en el Concurso Provincial para la renovación de la sede del Colegio de Arquitectos de la Provincia de Santa Fe, Argentina, 2013; Tercer Premio en el Concurso Provincial para la puesta en valor del espacio público del Barrio Ingles de Rosario, Argentina, 2012; Honorable Mention en Steedman Fellowship International Design Competition, 2008;  Nomination Frederick Widmann Prize Best Student, 2007; Nomination AIA Medal Recognition of scholastic achivement 2007; Full Tuition Scholarship Washington University in Saint Louis School of Architecture 2004; y Primer Premio Concuso Clarín para estudiantes 2001, entre otros.

 

Ha desarrollado su  experiencia profesional en el estudio de Gerardo Caballero-Maite Fernandez en Rosario, Argentina; LuchiniAD Adrian Luchini en Saint Louis, MO; Zaha Hadid Architects en Londres; y Zimmer Gunsul Frasca LLP en Seattle, WA. En el 2009 forma 2(A) DosArquitectas con Guillermina Iglesia. Junto al Arq. Ricardo Kingsland ha participado en planes urbanos como profesional especialista y ha desarollado proyectos de escala urbana y regional. 

 

Acompaña su práctica profesional con su desarrollo docente desde el año 2000 en Rosario y Saint Louis. En 2006 y 2007 se desempeñó como research assistant para Zeuler Lima PhD, CAU-BR, para su libro sobre Lina Bo Bardi (Yale University Press, 2013). Es docente titular de la cátedra de Proyecto V en la Universidad Abierta Interamericana de Rosario y Profesora Adjunta en la cátedra De Teoría y Ténica del Proyecto Arquitectónico a cargo del Arq. Juan Manuel Rois en la Facultad de Arquitectura de la UNR. 

Guillermina Iglesia, es arquitecta por la Facultad de Arquitectura de la Universidad Nacional de Rosario en el año 2009.

Ha desarrollado su  experiencia profesional desde 2004 al 2008 en el estudio de Rafael Iglesia en Rosario, Argentina, en el año 2005 en el Gabinete de arquitectura de Solano Benitez en Asunción, Paraguay. Desde 2008 ejerce la práctica profesional de manera independiente, a partir de 2009 como 2(A) DosArquitectas junto a María Eva Contesti.

Desde el 2011 es socia fundadora de Gea Desarrollos S.R.L. donde lleva a cabo el proyecto del Parque Industrial San Lorenzo.

Acompaña su práctica profesional participando en concursos nacionales e internacionales, organizando muestras, talleres y publicaciones. En 2004 organiza el workshop “Cuando el problema es la solución” en Rosario, Argentina. En 2005 coordina la muestra del Monográfico de Rafael Iglesia de la Universidad de Navarra, Pamplona España. En 2006 colabora en el curso de otoño dictado por Rafael Iglesia en la Facultad de Arquitectura de la Universidad de Berkeley (U.C.B.) California, Estados Unidos. En 2007 Colabora para la exposición HEX Centro Cultural de España, Buenos Aires, Argentina. Organiza el America(no) del Sud Giro 2013 Tucumán – Córdoba - La Plata, Argentina que contó con la participación de los Arquitectos Alejandro Aravena, Solano Benitez, Angelo Bucci, Rafael Iglesia, Ricardo Sargiotti y José María Saez Vaquero. Desde 2014 forma parte del COLECTIVO IMPAR organizando la clínica de proyecto “Orilla Adentro” con la participación de los arquitectos Marcelo Villafañe de Rosario y Javier Corvalán, Jose Cubilla, y Sergio Fanego de Asunción, Paraguay, y  en 2015 “Tangram Eco-social” coordinado por Felipe Mesa, PlanB Arquitectos de Colombia. En 2016 organiza la muestra internacional “Rafael Iglesia, Fuerzas en Juego” y “La Raiz abstracta” de Alvar Aalto en el CCPE.

NICOLÁS BLANCO

MAXIMILIANO BAUDINO

GALA CASTELLANOS

EUGENIA CITTERIO

CAROLINA COVERNTON

LAUTARO DEL FEDERICO

AGUSTINA FERRI

VIRGINIA FLOREZ

RODRIGO HERRERA MUÑIZ 

MARIA JOSÉ MANZI

MÓNICA MAZIAD

PAULA OLEA

MAURICIO PEDRA

PABLO PENINO

ALEJANDRO PERRIARD

MARTINA RODRIGUEZ

RAMIRO SERRA

MILVA SOPEGNO

JUAN MANUEL TOMASÍN

LORENZO TREPAT

FRANCO VARESSI 

 

Nuestro estudio fue destacado con menciones especiales en las categorías Proyectista y Desarrolladora en el premio nacional SoyArquitecta 2021/22

Este premio organizado por la red profesional soyarquitecta.net de Argentina, y lanzado el 8 de marzo de 2021, tiene como objetivo la difusión de trabajo de las arquitectas a nivel nacional, promover el empoderamiento de la mujer y el desarrollo de sus habilidades, destacar la trayectoria de las profesionales en las diferentes áreas temáticas, impulsar referentes para las generaciones más jóvenes y abrir caminos para una profesión más inclusiva y con equidad.

En esta edición se presentaron 313 postulaciones, de un total de 173 arquitectas (muchas de ellas fueron postuladas más de una vez), que participaron en 6 categorías: Activista, Desarrolladora, Diseñadora, Formadora, Proyectista y Técnica. Las postulaciones llegaron de casi todas las regiones del país.

La selección se realizó en dos etapas. En una primera etapa un comité de preselección integrado por representantes de diferentes provincias del país trabajó en la organización del material y pre seleccionó 76 arquitectas que pasaron a una segunda instancia final.
En esta etapa el Comité de Juradas internacional definió las ganadoras, menciones y destacadas, cuyo anuncio se realizó el 30 de marzo de 2022 en la Casa de la Cultura del Fondo Nacional de las Artes en el Barrio Parque, CABA:

La coordinación del premio estuvo a cargo de las arquitectas Victoria Baeza, Claudia Faena y Paula Lavarello con la colaboración de Victoria Migliori, Paola Zini y Ana Laura Biren, todas cofundadoras de soyarquitecta.net.

El Premio Nacional Soy Arquitecta 2021/22 tuvo el auspicio de las empresas Knauf, Piazza e Idero y el apoyo institucional de FFPA, FADEA, CPAU, SCA, Colegio de Arquitectos de Córdoba, Colegio de Arquitectos de Mendoza, Colegio de Arquitectos de Salta, Colegio de Arquitectos de San Juan, Colegio de Arquitectos de La Rioja, Colegio de Arquitectos de Chaco, Colegio de Arquitectos de Santa Fe y del Colegio de Arquitectos de Chubut. Apoyaron los colectivos Un día Una Arquitecta, Lina Plataforma, Nuestras Arquitectas, UADFem Línea de Investigación, Arquelarre, Arquitectas Mendoza y Colectivo de Arquitectas.

MIES CROWN HALL AMERICAS PRIZE nominated emerge 2022

 

Bertolotti Vial, oficina y nave de maquinarias, fue nominado a este distinguido premio internacional.

Categoría Edificios Industriales:
Premio Trabajo Nro 87, Nave de maquinarias y oficinas Bertolotti  
San Lorenzo . Santa Fe

Autoras:
Guillermina Iglesia – CAPSF 06595 
María Eva Contesti – CAPSF 06596

Colaboradores:
Virgina Florez
Rodrigo Herrera Muñiz
Lorenzo Trepat
Eugenia Citterio

Crítica del Jurado:
Se trata de un edificio que reflexiona sobre la producción del paisaje al borde de una autopista.
Las proyectistas suprimen la habitual dicotomía entre sector oficinas y el sector correspondiente a talleres/depósitos que constituyen la incoherente estructura de  tantos complejos industriales.
Se articula el programa dentro de dos volúmenes vinculados por un patio/puente pero apuntado a una imagen unitaria a través de su forma y tratamiento cromático.
La construcción se transforma en una referencia, un estímulo visual al margen de una autopista con la llanura de fondo. Se consigue una imagen pregnante con una escala adecuada al flujo óptico que experimenta el observador en movimiento.
Se pondera el enfoque contemporáneo e innovador en el paisaje y en el rubro de la arquitectura industrial, que en general queda acotada a soluciones convencionales.

https://www.instagram.com/ciclodistendidos/

4TO CICLO DE CHARLAS

ORIGEN EXPECTATIVA REALIDAD 

Un grupo de arquitectos jóvenes y estudiantes de arquitectura de la ciudad de Rosario, Argentina, que de manera independiente organiza un ciclo de charlas de arquitectura con un formato particular. Todo surgió cuando nos vimos en la  inquietud y necesidad de trasladar las discusiones y reflexiones del ámbito de la arquitectura fuera de los espacios institucionales. Al sacarlas del contexto tradicional, generamos un ambiente distendido y propicio para el nacimiento de nuevos vínculos, que trascienden a los arquitectos y estudiantes teniendo alcance a otros profesionales y aficionados, como también al resto de la ciudad.  

 

 

TENDIEZ «Experiencias en espacios de trabajo»
el 27/06/2019 en el Museo Castagnino de Rosario.

Compartimos nuestras exposiciones de la jornada TENDIEZ.

Clickeá acá Guillermina Iglesia y acá Maria Eva Contesti

Hemos sido invitadas a representar al Arq. Rafael Iglesia en Inaugural Award Celebration del Mies Crown Hall American Prize, a realizarse durante los días 21 y 22 de Octubre en el Illinois Institute of Technology en Chicago, EEUU. El Edificio Altamira de nuestra ciudad, ha sido anunciado finalista en Santiago de Chile por el presidente del premio Profesor Kenneth Frampton el pasado 26 de Septiembre. Los siete finalistas se consideran respuestas sobresalientes a los desafíos de construir en el siglo XXI, destacando la importancia de la innovación y el valor de lo público en la metrópolis contemporánea.

El Mies Crown Hall American Prize cuenta con un prestigioso jurado integrado por Jury President Kenneth Frampton, Ware Professor of Architecture at GSAPP, Columbia University, New York; Wiel Arets, Dean of the College of Architecture and Rowe Family College of Architecture Dean Endowed Chair at IIT, Chicago; Jorge Francisco Liernur, Architect, Professor at Torcuato Di Tella University, and Researcher of Argentina’s National Council for Scientific and Technical Investigation, Buenos Aires; Dominique Perrault, Founding Principal, Dominique Perrault Architecture, Paris and Professor at EPFL, Lausanne; and Sarah Whiting, Dean and William Ward Watkin Professor, Rice School of Architecture, Houston.

 

más info

http://www.arch.iit.edu/life/inaugural-mchap-award-celebration

 

ALTAMIRA BUILDING PRESENTATION                                       OCT 22nd MORNING SESSION

 

Located in the center of Rosario, in a typical but at the same time particular city block, the Altamira building accomplished the entire set of the city code regulations. The lot is a typical 8,66 meters wide. Its particularity sets on the adjacent historically protected houses on the east of the lot which allowed the future construction to have a view above this two storey houses toward the riverfront. The typicality remains on the maximum height allowed and the maximum surface occupied in each floor. The Rosario center built fabric is constituted by this type of buildings, however the Altamira stands out from the rest by questioning some of the accepted conventions. Even if it maintains the classical tripartite division of base, repetitive floors and a topped attic, with a generous double height entrance garden, and a double height terrace opened toward the river view at the penthouse, denies any trace of verticality. The archetype of the high-rise building is erased. In the pampas, the horizontality predisposes the way we see, as far as the eye can reach. The Paraná River marks its presence by liquefying the horizon. The building frames this liquid landscape. And that is special.

 

In the Rio de la Plata, our history is short. Rafael always says that we are more geographical than historical. We don´t only lack of a strong colonial history, given that the conquerors arrived late to this latitude but also lack of pre Hispanic culture, thus no strong native civilization developed here, comparing our history with the one of Peru, Mexico or the Caribbean. As some people sustain, this South American condition creates a permanent state of uncertainty and hesitation. The author, in this case, the architect is not foolproof. Instead of revealing clear statements, Rafael makes the observer accomplice of his own doubts and questions. Looking at the building, one could transit through the architect´s own search. The observer is, at the same time, created. Thus the author needs an informed and knowledgeable audience in order to comprehend the proposed game.  The lack of vertical elements, for example, (there is no column), challenges the structural logic.

 

The beams are used like lumbers stacked one on top of each other. The material, which is reinforced concrete, is used with the intrinsic logic of wood. Experimentation is for Rafael the only way of working. His knowledge comes more from empirical learning and sharp observation than scholar education. For him, it is best to be alert than to be informed.

 

This building is only structure. In his works, Rafael intends to manipulate gravity by making more complex the way the forces get to the ground. The weight is understood not as a problem to solve but as a solution. The counterweight is what makes the building stable.

 

There is only one element playing different roles depending on its position in space. Beams are walls, parapets and lintels. They behave according to the assigned role. Their identical nomination mutes into different denomination when placed distinctively. If the external appearance of the structural system is not evident, the interior space reveals even less evidence. This game confuses the observer to the point of not being able to identify the identity of the elements.  

 

Rafael use to quote a paragraph of the book A thousand Plateaus written by Deleuze and Guattari to explain this project strategy:

Let us take chees and Go, from the standpoint of the game pieces, the relations between the pieces and the space involved. Chess pieces are coded; they have an internal nature and intrinsic properties from which their movements, situations, and confrontations derive. They have qualities: a knight remains a knight, a pawn a pawn, a bishop a bishop. Each is like a subject of the statement endowed with a relative power, and these relative powers combine in a subject of enunciation, that is, the chess player or the game´s form of interiority. Go pieces in contrast, are pellets, disks, simple arithmetic units, and have only an anonymous, collective, or third person function: “It” makes a move. “It” could be a man, a woman, a louse, an elephant. Go pieces are elements of nonsubjectified machine assemblage with no intrinsic properties, only situational ones.

 

Likewise the structure, the interior space lacks of specific denomination. Space is conceived as a generic container of activities. There is no particular spatial qualification, as living room, dining room, bedroom, etc. could be accommodated along the floor plan as needed. One of Rafael´s persistent concerns is the future of our daily life. No one knows how technology will affect the way we live today. The typical family structure has already changed – single parent families, assemble families, etc. The increasing possibility of working at home has also affected the domestic demands. He believes that Internet changes everything, as it has no antecedents, no past. We’re in a new environment. The true revolution is taking place inside the house.

 

So the building opens endless different configuration of the floor plan.

 

The layout of the units is a free plan with a service inner core, and a separated room accessible from the balcony. The infrastructure has been distributed in the plan in a way that users could add bathrooms or move the kitchen according to their needs. The public fire escape staircase creates double height spaces which are occupied with private stairs connecting two levels. The private stair allows the configuration of duplex apartments or lofts without adding square meters to the plan simply by using or nullifying this scissor stairs. The lack of functional specificity of the units grants innumerable disposition possibilities to its users.

 

One traditional type of housing in Argentina, the so called chorizo house, could be defined as a roman courtyard house split in half. In the case of Altamira Building, Rafael reinterprets the entry. Furthermore, he externalize the corridor; this is simply the re instatement of the casa chorizo´s well known patio, in which this exterior space gives access to each room. In the context of this reinterpretation, the casa chorizo takes on a new meaning. In the past, the occupant had to traverse the patio to access the toilet or the kitchen, in the Altamira building, the occupant passes through the patio-balcony to access to unit. Furthermore, the patio-balcony allows the unit to expand to an outside terrace overlooking the Paraná River.

 

Again, this lack of specificity regarding the space is demonstrated in the balcony, which is also the entrance hall. That is to say, two functions developed in one space.

 

As Rafael likes to talk about Jorge Luis Borges, a very much famous Argentinian writer, saying that he is the best architect of all. One could compare these two by pointing out the classical structure in their work and their revolutionary content. In Borges, the structure of his short stories are classical, which is new are the themes/topics. In Rafael´s work, one could stand that the typologies are respected, which is revolutionary is the program and the way he approaches to functions and elements. To give two examples, in the Altamira a residential high rise building is treated as a vertical repetition of horizontal plain spaces. Another example is how the structure is treated as a skin. Whereas in the majority of the high rise buildings the form and the skin are the protagonists in the Altamira the elements are reversed. The glass windows set back making the structure the outer layer. So he revises crucial aspects of a conventional typology making this building a hinge between the past and the future of high rise construction.

 

So having said that and quoting Proffesor Wilfried Wang we ask ourselves one more time: What is so unique about a slim, reinforced concrete, high rise building in a downtown area of a South American city? Seeing it from a distance, one must surely answer, “nothing”.

 

Fotos de la jornada

Qs&As on "Process and Performance" in S. R. Crown Hall 

Moderators: 
Sarah Whiting, Jorge Francisco Liernur – MCHAP jury members

Discussion on Altamira Residential Building: Guillermina Iglesia, Maria Contesti – MCHAP finalist team representatives, Timothy Brown, Aimee Dewane – CoA faculty and student

 

Video

MCHAP ACCORD discussion on "Rethinking Metropolis: Critical Practice and Architecture in the Americas" in S. R. Crown Hall with Wiel Arets, Jorge Francisco Liernur, Kenneth Frampton, Joshua Prince-Ramus, Jacques Herzog, Christian Undurraga, Alvaro Siza, Cecilia Puga, Chris McVoy, Maria Eva Contesti, Sarah Whiting, and Dirk Denison.

 

Video

La implantación específica crea espacios intersticiales entre la nueva masa construída y los ejes medianeros existentes absorbiendo sus condiciones particulares, muros cuidadosamente pintados como bienes de valor patrimonial a preservar.